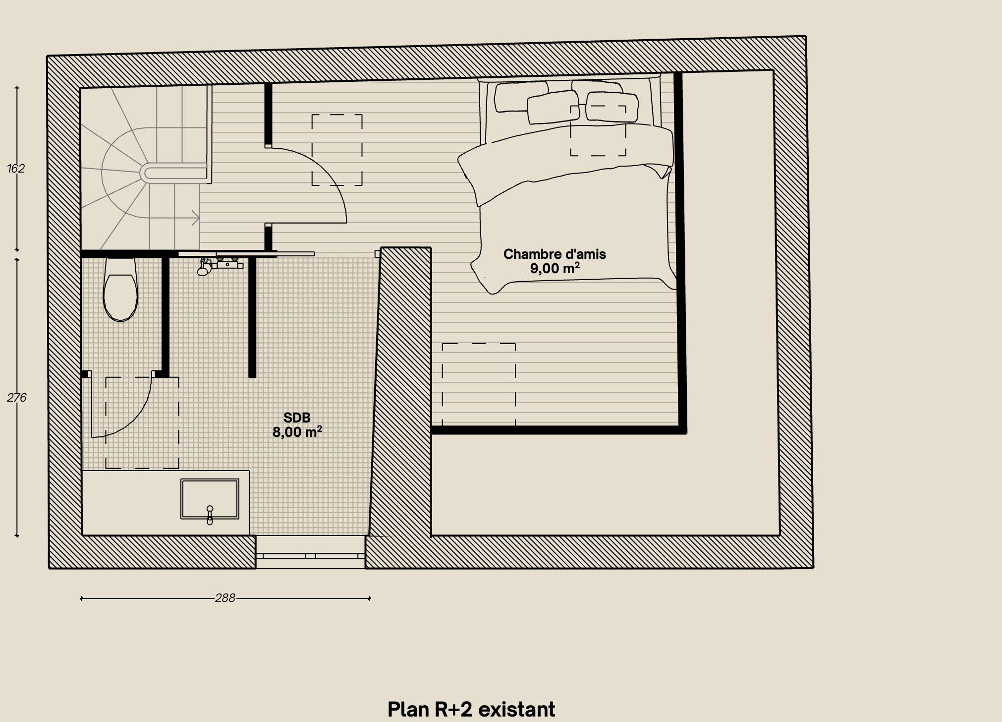
Maisonette
Programme Rénovation lourde d'une petite maison en fond de cour
Localisation Paris VI
Surface 70m²
Statut Livré en septembre 2025
Restructuration complète d’une maisonnette de 70 m², sur trois étages, nichée en fond de cour.
Les espaces s’ouvrent pour laisser circuler la lumière dans une palette de matières naturelles et claires. Au rez-de-chaussée, un lieu de partage conçu pour une cheffe de cuisine, entre convivialité et fonctionnalité, signé d’un sol en mosaïque de grès cérame multicolore aux accents de bistrot parisien.






Plans






AVANT



